Einfamilienhaus Wohn- & Nutzfläche 148,19 m²
Einfamilienhaus

Wohn- & Nutzfläche 148,19 m² ...mehr

Einfamilienhaus

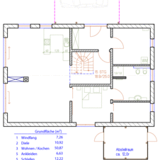
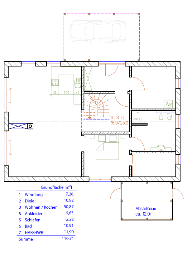
Wohnbereich EG Fläche EG Wohnbereich DG Fläche DG
Windfang 7,26 m² Galerie 16,44 m²
Diele 10,92 m² Gast 10,88 m²
Wohnbereich/Küche 50,87 m² Bad 6,69 m²
Ankleide 6,63 m² Abstellen 3,47 m²
Schlafen 12,22 m²    
Bad 10,91 m²    
HAR/HWR 11,90 m²    
Wohn- und Nutzfläche 110,71 m² Wohn- und Nutzfläche 37,48 m²

Wohn- & Nutzfläche 148,19 m²

Grundrisse

Wir beraten Sie gern!

Kontakt:
Musterhaus, Amselweg 7
17493 Greifswald/Eldena
+49 (0) 3834 840329
info@egner-haus.de

Öffnungszeiten:
Montag bis Freitag 08:00 - 18:00 Uhr
persönliche Absprachen sind jederzeit möglich
(auch am Wochenende)

Kontaktdaten Egner-Haus GmbH & Co. KG zum Einscannen