Einfamilienhaus Wohn- & Nutzfläche 132,96 m²
Einfamilienhaus

Wohn- & Nutzfläche 132,96 m² ...mehr

Einfamilienhaus

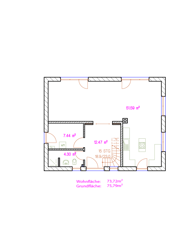
Wohnbereich EG Fläche EG Wohnbereich DG Fläche DG
Diele 12,47 m² Zimmer 17,36 m²
Wohnbereich/Küche 51,59 m² Flur 5,35 m²
Bad 4,30 m² Bad 12,35 m²
HAR/HWR 7,44 m² Abstellen 3,45 m²
    Zimmer 17,23 m²
    Schlafen 13,85 m²
Wohn- und Nutzfläche 73,72 m² Wohn- und Nutzfläche 59,24m²

Wohn- & Nutzfläche 132,96 m²

Grundrisse

Wir beraten Sie gern!

Kontakt:
Musterhaus, Amselweg 7
17493 Greifswald/Eldena
+49 (0) 3834 840329
info@egner-haus.de

Öffnungszeiten:
Montag bis Freitag 08:00 - 18:00 Uhr
persönliche Absprachen sind jederzeit möglich
(auch am Wochenende)

Kontaktdaten Egner-Haus GmbH & Co. KG zum Einscannen